Finestra a 2 Ante *
Persiana in Alluminio a 2 ante con lamelle orientabili oppure con lamelle fisse. Personalizza la tua finestra, a prezzi Fabbrica.
Inserisci le misure in cm
Senso di apertura
Tipologia Telaio
Scegli il tipo di chiusura
CERNIERE DI SERIE


CHIUSURE
Le persiane sono l'elemento oscurante per eccellenze. Oltre ad oscurare l'ambiente dalla luce solare, consentono una buona aerazione e circolazione dell'aria, donano un aspetto gradevole, sia dall'esterno dell'abitazione, sia al suo interno. Negli ultimi tempi sono tornate di moda e sono largamente impiegate sia nelle abitazioni di recente costruzione che in quelle in ristrutturazione.
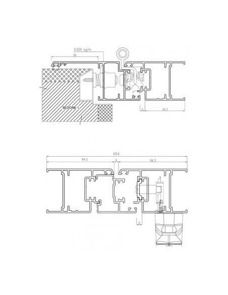
Le nostre persiane sono costruite in alluminio e sono formate da un telaio fisso, da uno mobile e da una barriera costituita da listelle che possono essere orientabili o fisse. Inoltre, l'anta della persiana può essere con o senza battuta, a seconda che l'anta poggi o meno sulla soglia inferiore.
Le nostre persiane, attraverso varie combinazioni di forme e colori d'alluminio, possono determinare lo stile di un appartamento o di una casa e soddisfare ogni tipo di esigenza. Sono molto efficaci nell'isolamento termico e acustico, e proteggono da sguardi esterni e indiscreti.
Le PERSIANE, da noi prodotte, in ottemperanza alla norma UNI EN 13659:2004 "Chiusure Oscuranti - Requisiti prestazionali compresa la sicurezza", sono dotate di marcatura CE perchè possiedono tutti i requisiti previsti per i prodotti immessi sul mercato nei paesi aderenti all'Unione Europea, e cioè:
-
Sicurezza contro gli incendi;
-
Igiene per l'uomo e l'ambiente;
-
Sicurezza di impiego;
-
Limitazione del rumore;
-
Risparmio energetico.
Inoltre, dopo aver fatto diverse prove di laboratorio, le persiane sono state classificate, con il risultato migliore, ovvero con la CLASSE 6 per RESISTENZA AL CARICO DEL VENTO, il parametro destinato a valutare le caratteristiche prestazionali degli elementi oscuranti.
RILIEVO MISURE
Rilevare da misura precisa del Vano ( vuoto )
- Materiale
- Alluminio
- Prezzo al pz
- 386,50 €
persiana a due ante
11/10/2019
s. f.
pienamente soddisfatto, ho acquistato un pezzo singolo per valutare le caratteristiche del prodotto e decidere se procedere nell acquisto delle restanti persiane che mi serviranno.
persiana a due ante
11/10/2019
s. f.
pienamente soddisfatto, ho acquistato un pezzo singolo per valutare le caratteristiche del prodotto e decidere se procedere nell acquisto delle restanti persiane che mi serviranno.
Ottimo
28/08/2019
p. p.
Ordiner? altri infissi
Acquisto persiane
27/03/2019
g. b.
Personale gentilissimo e qualificato.rispettati tempi di consegna, prodotto ottimo e consiglio gli acquisti


